mau nha 1 tang 80m2 3 phong ngu: giai phap toi uu cho gia dinh dong thanh vien
- Nội Thất Điểm Nhấn

- 10 thg 1
- 4 phút đọc
Trong xu hướng xây dựng nhà ở hiện nay, mẫu nhà 1 tầng 80m2 3 phòng ngủ đang trở thành tâm điểm chú ý của nhiều gia đình, đặc biệt là các cặp vợ chồng trẻ hoặc những gia đình sở hữu quỹ đất không quá rộng. Việc bố trí 3 phòng ngủ trên diện tích 80m2 đòi hỏi một tư duy quy hoạch mặt bằng cực kỳ khoa học để đảm bảo sự cân bằng giữa không gian sinh hoạt chung và riêng tư.
Hãy cùng khám phá những ý tưởng thiết kế đột phá, giúp biến 80m2 thành một không gian sống tiện nghi, thoáng đãng và đậm chất nghệ thuật.

1. Tại sao mẫu nhà 1 tầng 80m2 3 phòng ngủ lại được ưa chuộng?
Không phải ngẫu nhiên mà mẫu nhà này lại trở thành "cơn sốt" trong phân khúc nhà ở bình dân và trung cấp:
Tiết kiệm chi phí đầu tư: Với diện tích 80m2, chi phí xây dựng phần thô và hoàn thiện nội thất nằm trong tầm tay của nhiều gia đình Việt (dao động từ 500 - 800 triệu VNĐ).
Kết nối thành viên: Nhà 1 tầng (nhà cấp 4 hiện đại) giúp mọi sinh hoạt tập trung trên một mặt sàn, tạo sự gần gũi, ấm cúng và an toàn cho người già hoặc trẻ nhỏ khi không phải di chuyển cầu thang.
Thời gian thi công nhanh: Quy mô 1 tầng giúp rút ngắn thời gian xây dựng, gia chủ có thể sớm dọn về tổ ấm mới.
Xem thêm: Thiết kế căn hộ 80m2 3 phòng ngủ
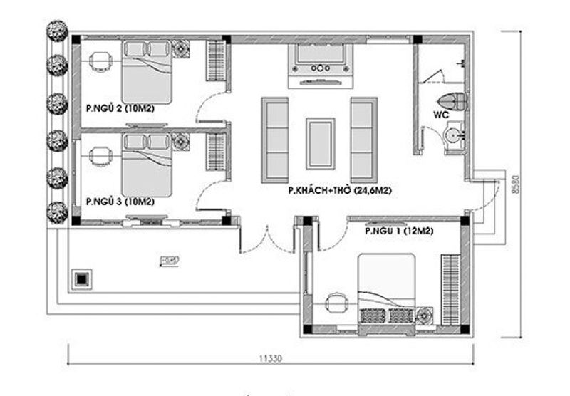
2. Bí quyết bố trí mặt bằng nhà 1 tầng 80m2 có 3 phòng ngủ
Để 80m2 không bị "ngộp" bởi 3 phòng ngủ, các kiến trúc sư thường áp dụng các nguyên tắc vàng sau:
2.1. Thiết kế phòng khách liên thông bếp
Đây là giải pháp "cứu cánh" cho diện tích nhỏ. Việc loại bỏ vách ngăn giữa phòng khách và phòng ăn tạo nên một khoảng không gian mở (Open Space) rộng lớn ở giữa nhà. Điều này giúp ngôi nhà trông rộng hơn thực tế đến 20%.
2.2. Tận dụng hành lang làm không gian chuyển tiếp
Hành lang dẫn vào các phòng ngủ cần được tính toán diện tích tối thiểu (thường rộng khoảng 1m - 1.2m). Bạn có thể trang trí thêm tranh ảnh hoặc hệ đèn Led âm trần để khu vực này không bị đơn điệu.
2.3. Quy hoạch diện tích các phòng ngủ
Phòng ngủ Master: Khoảng 12 - 14m2 dành cho bố mẹ, có thể tích hợp nhà vệ sinh riêng.
2 phòng ngủ nhỏ: Khoảng 8 - 10m2 dành cho con cái. Sử dụng nội thất thông minh như giường bục, bàn học treo tường để tiết kiệm không gian.
3. Các phong cách kiến trúc phù hợp cho nhà 80m2
3.1. Phong cách hiện đại (Modern Style)
Sử dụng mái bằng hoặc mái lệch kết hợp với các mảng kính lớn. Phong cách này ưu tiên sự tối giản, tập trung vào hình khối và công năng, giúp ngôi nhà 80m2 trông rất trẻ trung và thời thượng.
3.2. Phong cách nhà vườn mái Thái
Mái Thái giúp ngôi nhà trông cao ráo và thoát nước tốt, phù hợp với khí hậu nhiệt đới Việt Nam. Khi kết hợp với một khoảng sân nhỏ phía trước, mẫu nhà 1 tầng 80m2 3 phòng ngủ sẽ trở nên thơ mộng và gần gũi với thiên nhiên.
3.3. Phong cách tối giản Nhật Bản (Muji Style)
Sử dụng tông màu gỗ sáng và trắng làm chủ đạo. Sự tinh gọn trong cách bài trí giúp ngôi nhà 80m2 luôn ngăn nắp, tạo cảm giác thư thái tuyệt đối cho gia chủ.

4. Những lưu ý quan trọng để không gian không bị bí bách
Khi thiết kế nhà 1 tầng diện tích nhỏ có nhiều phòng ngủ, ánh sáng và không khí là hai yếu tố quyết định:
Sử dụng giếng trời: Một ô giếng trời nhỏ ở giữa nhà hoặc khu vực bếp sẽ giúp lấy ánh sáng tự nhiên và thoát mùi cực tốt.
Cửa sổ cho mọi phòng ngủ: Đảm bảo tất cả các phòng ngủ đều có cửa sổ hướng ra ngoài hoặc hướng ra khu vực sân sân sau (sân gà) để không khí được đối lưu.
Nội thất đa năng: Hãy ưu tiên tủ quần áo kịch trần, giường tích hợp ngăn kéo và các loại kệ treo tường để giải phóng diện tích sàn.
Xem thêm: thiết kế căn hộ 25m2
5. Dự toán chi phí xây dựng năm 2026
Mức giá xây dựng có thể thay đổi tùy theo khu vực và vật liệu, tuy nhiên bạn có thể tham khảo bảng dự toán sơ bộ:
Hạng mục | Đơn giá ước tính | Tổng chi phí (80m2) |
Xây dựng phần thô & nhân công | 3.5 - 4 triệu/m2 | 280 - 320 triệu |
Hoàn thiện nội thất cơ bản | 2 - 3 triệu/m2 | 160 - 240 triệu |
Chi phí thiết kế & pháp lý | 15 - 20 triệu | 20 triệu |
Tổng cộng | 500 - 600 triệu VNĐ |
6. Gợi ý 2 mẫu mặt bằng phổ biến cho nhà 1 tầng 80m2
Mẫu 1 (Hình chữ L): Tận dụng góc chữ L để làm sân đậu xe hoặc sân chơi cho bé. Phòng khách đặt ở chính diện, 3 phòng ngủ được bố trí dọc theo chiều dài của nhà.
Mẫu 2 (Hình ống dài): Phòng khách và bếp ở phía trước, 3 phòng ngủ được xếp liên tiếp phía sau, cuối nhà là khu vực vệ sinh và sân phơi để đảm bảo sự riêng tư.
Mẫu nhà 1 tầng 80m2 3 phòng ngủ là minh chứng cho việc diện tích không phải là rào cản của sự tiện nghi. Bằng cách sắp xếp mặt bằng thông minh, tận dụng tối đa ánh sáng tự nhiên và lựa chọn nội thất đa năng, bạn hoàn toàn có thể sở hữu một ngôi nhà hiện đại, đầy đủ công năng cho cả gia đình.
Đừng ngần ngại tham khảo ý kiến của các kiến trúc sư để có một bản vẽ "đo ni đóng giày" cho mảnh đất và nhu cầu của bạn. Ngôi nhà không cần quá lớn, chỉ cần đủ yêu thương và sự tinh tế trong từng mét vuông.



Bình luận